





Apartament 2 camere , bloc nou, Marasti
Cluj-Napoca, Marasti
500€
Camere
2
Suprafata utila
50 mp
Suprafata construita
55 mp
Etaj
Etaj 2
Bai
1
An constructie
2012
- ID:P12490
- Nr. camere:2
- S. utila:50.00 mp
- S. construita:55.00 mp
- Comp.:Semidecomandat
- Confort:1
- Etaj:Etaj 2
- Nr. bucatarii:1
- Nr. bai:1
- An constructie:2012
- Structura:Caramida
- Tip imobil:Bloc
- Regim inaltime:P+3
- Clasa energetica:B
Descriere
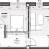
Smart Imobiliare va ofera spre inchiriat un apartament cu 2 camere situat in bloc nou, in Marasti, pe strada Cosasilor. Apartamentul are 52 mp, este situat la etaj intermediar, si este compus din : dormitor, living cu bucatarie, hol si baie cu geam. Apartamentul este finisat, mobilat si utilat complet. Disponibil cu data de 1 aprilie !!!
Specificatii
Curent
Apa
Canalizare
Gaz
Centrala proprie
Michnea Cosmin
0755567377
Esti interesat de aceasta proprietate ?