








Apartament 3 camere BLOC NOU Zorilor Frunzisului
Cluj-Napoca, Zorilor
700€
Camere
3
Suprafata utila
54 mp
Suprafata construita
60 mp
Etaj
Etaj 10
Bai
1
An constructie
2023
- ID:P11105
- Nr. camere:3
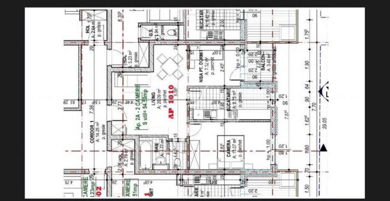
- S. utila:54.00 mp
- S. terase:6.00 mp
- S. utila totala:60.00 mp
- S. construita:60.00 mp
- Comp.:Semidecomandat
- Confort:1
- Etaj:Etaj 10
- Nr. bucatarii:1
- Nr. bai:1
- An constructie:2023
- An renovare:2024
- Structura:Beton
- Tip imobil:Bloc
- Regim inaltime:S+D+P+14
- Orientare:Est
- Avans:700
- Garantie:700
- Clasa energetica:B
Descriere
Smart Imobiliare va ofera spre inchiriere apartament de 3 camere in Zorilor . Imobilul in suprafata de 54 mp este compus din living, nisa de dormit cu acces la un balcon, dormitor, bucatarie decomandata si baie. Apartamentul se preda complet mobilat si utilat, centrala termica, calorifere si usa metalica. Situat în cartierul Zorilor, la limita cu cartierul Mănăștur pe strada Frunzișului, anasamblul este astfel privilegiat de o infrastructură foarte bună, oferind totodată o oază de liniște la numai 10 minute distanță de centrul orașului dar și un acces rapid la mijloacele de transport în comun, școli şi zone comerciale. Proiectul este compus dintr-un mixt echilibrat de apartamente eficient compatimentate cu terase generoase având o panorama deosebită; terase generoase verzi și cu arbori ornamentali; grădină urbană verticală și terasă circulabilă pentru locatari; teren de joacă pentru copii. Precertificat GREEN HOMES - cel mai robust sistem de certificare aplicabil clădirilor rezidențiale, recunoscut internațional. În plus, clădirea oferă un sistem de iluminat architectural și ambiental inteligent (LED); sistem de colectare a separată a deșeurilor; prize pentru mașini electrice, finisaje fără compuși organici volatili toxici și un ghid de finisare cu materiale ecologice pentru proprietari.Este inclus un loc de parcare.
Comision 50%.
Pentru a stabili o vizionare asteptam telefonul dumneavoastra.
Comision 50%.
Pentru a stabili o vizionare asteptam telefonul dumneavoastra.
Specificatii
Curent
Apa
Canalizare
Gaz
Telefon
Centrala proprie
Calorifere
Izolatie Exterior
Vopsea lavabila
Faianta
Parchet
Gresie
Ferestre Termopan
Usa intrare Metal
Usa interior Lemn
Bucatarie Mobilata
Bucatarie Utilata
Apometre
Contor caldura
Contor gaz
Complet mobilat
Interfon
Lift
Bilocopetiuc Stefan
0736953575
Esti interesat de aceasta proprietate ?