














Spațiu birouri sau showroom Andrei Mureșanu 100 mp vilă terasă grădină 500mp
Cluj-Napoca, Andrei Muresanu
1.500€
Camere
3
Suprafata utila
100 mp
Suprafata construita
120 mp
Etaj
Parter
Parcari
1
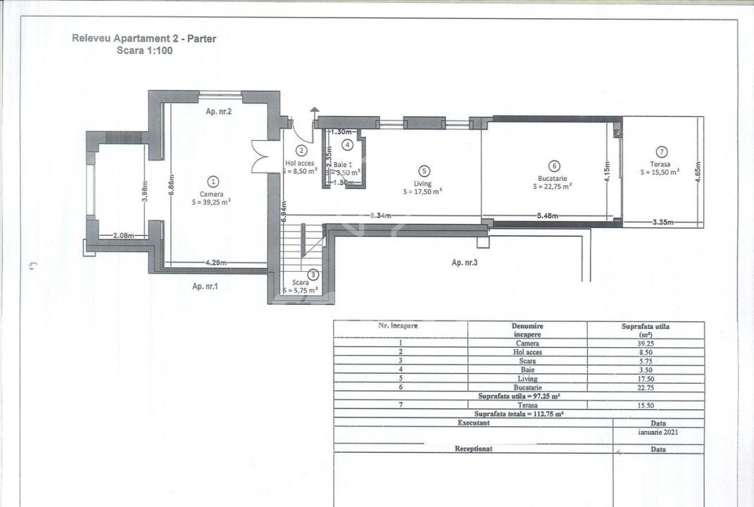
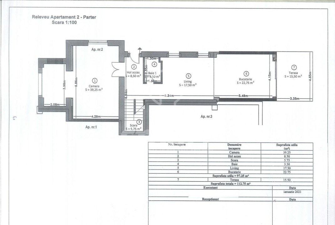
- ID:P12702
- Nr. camere:3
- S. utila:100.00 mp
- S. curte:500.00 mp
- Comp.:Open space
- Clasificare:A
- Etaj:Parter
- Nr. bai:1
- Terase:1
- Nr. parcari:1
- Structura rezistenta:Beton
- Tip imobil:Casa/Vila
- Regim inaltime:P+1
Descriere
Smart Imobiliare vă propune spre închiriere un spațiu ideal pentru birouri
sau activități comerciale tip showroom situat în cartierul Andrei Mureșanu
într o vilă elegantă cu arhitectură deosebită.
Spațiul are o suprafață totală de 100 mp și beneficiază de terasă grădină și curte generoasă
fiind ideal pentru desfășurarea unei activități profesionale într un cadru reprezentativ.
Compartimentare:
cameră reprezentativă cu vedere la stradă aproximativ 40 mp
zonă open space cu chicinetă aproximativ 40 mp
baie de serviciu
terasă 15 mp
grădină amenajată
Dotări și beneficii :
centrală termică proprie
încălzire în pardoseală
aer condiționat în toate încăperile
spațiu luminos și eficient compartimentat
se închiriază nemobilat
Curte generoasă de aproximativ 500 mp care trebuie întreținută pe cheltuiala chiriașului
Parcare pe stradă cu plată
Poziționare excelentă zonă foarte bună la aproximativ 150 m de stația de autobuz linia 21
și la 10 minute de mers pe jos de Tribunal ANAF Operă și zona centrală
Ideal pentru activități de birouri precum avocatură consultanță IT arhitectură sau sediu firmă
Spațiul oferă un cadru profesional într o zonă liniștită și accesibilă
Pentru mai multe informații sau programarea unei vizionări vă invităm să ne contactați
Se percepe comision 50% din prima chirie
sau activități comerciale tip showroom situat în cartierul Andrei Mureșanu
într o vilă elegantă cu arhitectură deosebită.
Spațiul are o suprafață totală de 100 mp și beneficiază de terasă grădină și curte generoasă
fiind ideal pentru desfășurarea unei activități profesionale într un cadru reprezentativ.
Compartimentare:
cameră reprezentativă cu vedere la stradă aproximativ 40 mp
zonă open space cu chicinetă aproximativ 40 mp
baie de serviciu
terasă 15 mp
grădină amenajată
Dotări și beneficii :
centrală termică proprie
încălzire în pardoseală
aer condiționat în toate încăperile
spațiu luminos și eficient compartimentat
se închiriază nemobilat
Curte generoasă de aproximativ 500 mp care trebuie întreținută pe cheltuiala chiriașului
Parcare pe stradă cu plată
Poziționare excelentă zonă foarte bună la aproximativ 150 m de stația de autobuz linia 21
și la 10 minute de mers pe jos de Tribunal ANAF Operă și zona centrală
Ideal pentru activități de birouri precum avocatură consultanță IT arhitectură sau sediu firmă
Spațiul oferă un cadru profesional într o zonă liniștită și accesibilă
Pentru mai multe informații sau programarea unei vizionări vă invităm să ne contactați
Se percepe comision 50% din prima chirie
Specificatii
Curent
Apa
Canalizare
Gaz
CATV
Acces internet
Fibra optica
Centrala proprie
Incalzire pardoseala
Aer conditionat
Vopsea lavabila
Faianta
Parchet
Gresie
Ferestre Termopan
Lampi
Spoturi
Aplice
Lumina naturala
Iluminat interior sistem LED
Spatiu verde amenajat
Apometre
Contor gaz
Complet mobilat
Interfon
Curte
Vlad Munteanu
0744600897
Esti interesat de aceasta proprietate ?