






Spatiu Birouri
Cluj-Napoca, Dambul Rotund
195.000€ + TVA
Camere
6
Suprafata utila
156 mp
Suprafata construita
170 mp
Etaj
Etaj 2
Parcari
1
An constructie
1994
- ID:P12232
- Nr. camere:6
- S. utila:156.00 mp
- Comp.:Compartimentat
- Etaj:Etaj 2
- Nr. bai:2
- Nr. parcari:1
- An constructie:1994
- Structura rezistenta:Caramida
- Regim inaltime:P+2
Descriere
Smart Imobiliare vă propune spre vânzare un spațiu cu potențial investițional ridicat, situat în cartierul Iris, în imediata apropiere a Străzii Maramureșului, zonă cu acces facil către principalele artere ale orașului.
Proprietatea este amplasată la etajul 2 al unei clădiri P+2 și beneficiază de posibilitatea de mansardare, oferind premise reale pentru creșterea suprafeței utile și maximizarea randamentului investiției.
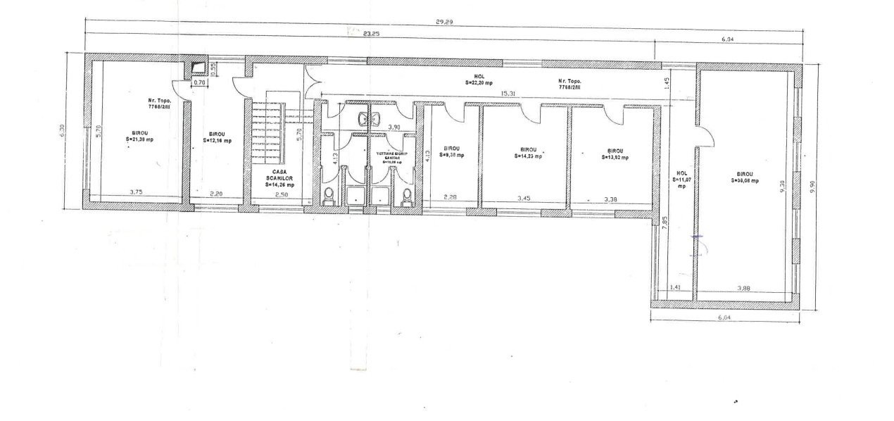
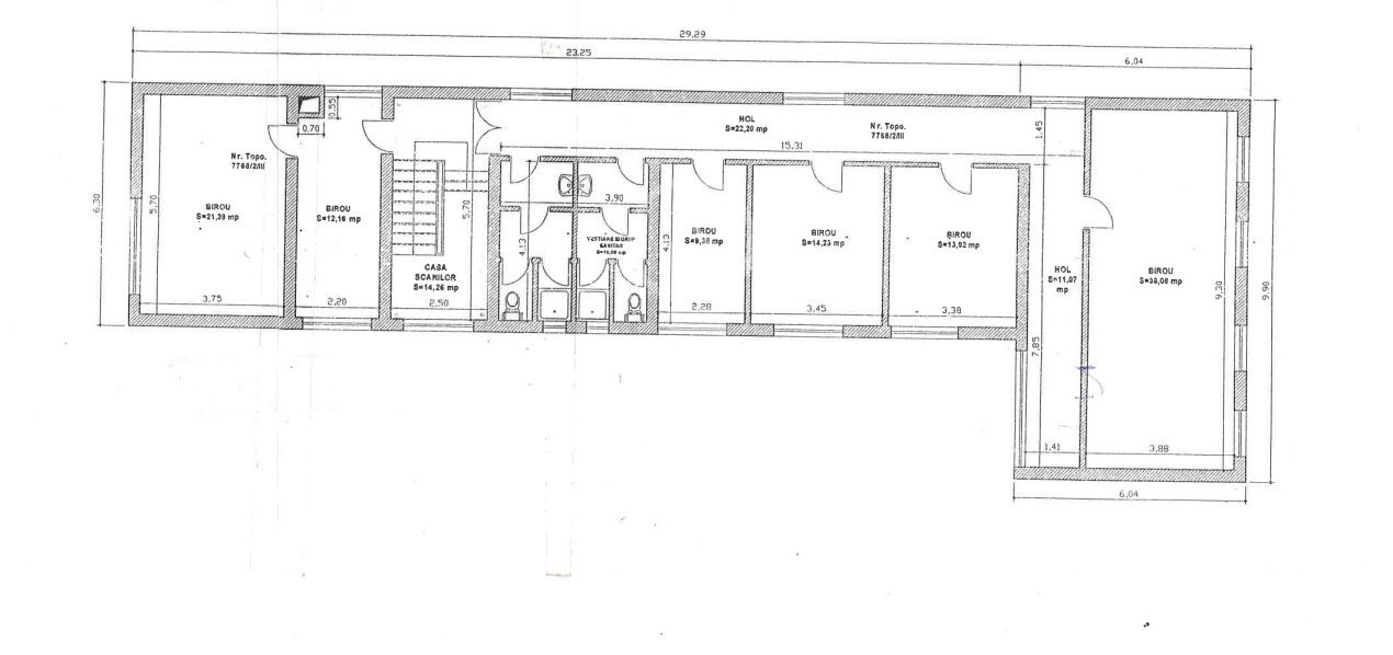
Spațiul are o suprafață utilă de 156 mp și este compartimentat în prezent în:
• 6 birouri,
• 2 holuri,
• vestiare,
• grup sanitar.
Necesită renovare, însă structura de rezistență pe stâlpi permite recompartimentare complet flexibilă, fiind ușor adaptabil pentru:
• birouri închiriabile,
• clinică medicală / stomatologică,
• centru educațional,
• sediu firmă,
• spațiu de coworking sau alte activități comerciale.
Imobilul este liber de sarcini și se vinde de pe firmă, cu TVA în regim de taxare inversă, un avantaj fiscal important pentru investitori.
Datorită poziționării, suprafeței și posibilităților de dezvoltare, proprietatea reprezintă o investiție solidă, cu potențial de valorificare atât prin închiriere, cât și prin reamenajare și revânzare.
Proprietatea este amplasată la etajul 2 al unei clădiri P+2 și beneficiază de posibilitatea de mansardare, oferind premise reale pentru creșterea suprafeței utile și maximizarea randamentului investiției.
Spațiul are o suprafață utilă de 156 mp și este compartimentat în prezent în:
• 6 birouri,
• 2 holuri,
• vestiare,
• grup sanitar.
Necesită renovare, însă structura de rezistență pe stâlpi permite recompartimentare complet flexibilă, fiind ușor adaptabil pentru:
• birouri închiriabile,
• clinică medicală / stomatologică,
• centru educațional,
• sediu firmă,
• spațiu de coworking sau alte activități comerciale.
Imobilul este liber de sarcini și se vinde de pe firmă, cu TVA în regim de taxare inversă, un avantaj fiscal important pentru investitori.
Datorită poziționării, suprafeței și posibilităților de dezvoltare, proprietatea reprezintă o investiție solidă, cu potențial de valorificare atât prin închiriere, cât și prin reamenajare și revânzare.
Specificatii
Curent
Apa
Canalizare
Gaz
Telefon
Acces internet
Fibra optica
Centrala imobil
Calorifere
Stefan Filip
0758911901
Esti interesat de aceasta proprietate ?