



Teren cu PUZ aprobat Buna Ziua pentru casa individuala sau duplex
Cluj-Napoca, Buna Ziua
509.000€
- ID:P12399
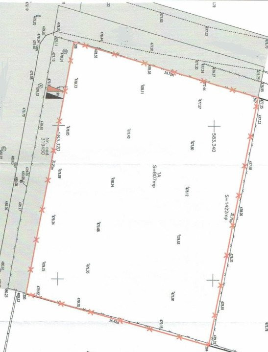
- S. teren:807.00 mp
- Front stradal:33.00 m
- Nr. fronturi:2
- Clasificare teren:Intravilan
- Regim inaltime:S+P+1+M
Descriere
Smart Imobiliare va ofera spre vanzare un teren deosebit situat in Buna Ziua, zona strazii Mihai Romanu. Parcela are suprafata de 807 mp utili, dupa ce s-a dezmembrat pentru largirea strazilor. Dispune de PUZ aprobat si CU de construire Locuinta semicolectiva cu 2 unitati locative . Terenul are front la 2 strazi 33 ml respectiv 25 ml fiind ideal pentru constructia a 2 case unite prin garaje. Terenul dispune de toate utilitatile ,iar demersurile pentru obtinerea autorizatie de construire au fost demarate. Pentru vizionare sau mai multe detalii va rugam sa ne contactati !!!
Specificatii
Curent
Apa
Canalizare
Gaz
Michnea Cosmin
0755567377
Esti interesat de aceasta proprietate ?