

Oportunitate investiție teren – Făget, zona str. Dianei -HCL în curs de aprobare
Cluj-Napoca, Faget
197.500€
- ID:P12454
- S. teren:1586.00 mp
- Front stradal:35.00 m
- Nr. fronturi:1
- Clasificare teren:Intravilan
- Regim inaltime:S+P+1
Descriere
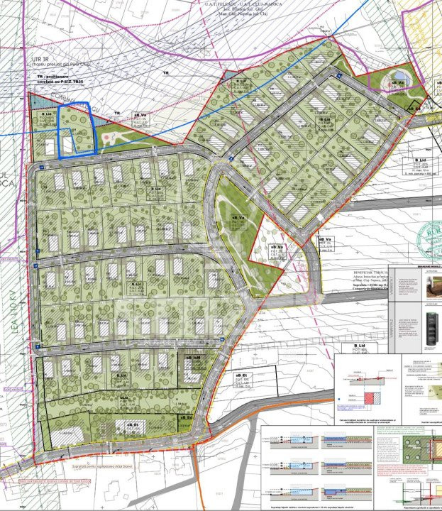
Vă propunem spre vânzare un teren cu poziționare excelentă în Făget, zona străzii Dianei,
într-un PUZ în curs de aprobare, pentru care urmează emiterea HCL.
📐 Date urbanistice:
Suprafață totală: 2.100 mp
Suprafață utilă rămasă: 1.586 mp (după cedarea pentru drumuri)
UTR: Lid
POT: 20%
CUT: 0,4
📏 Configurație ideală:
Front generos: 35 m
Adâncime: 50 m
Străzi prevăzute la 9 m lățime
Terenul beneficiază de o poziționare foarte bună în cadrul PUZ-ului,
ceea ce îl face potrivit pentru dezvoltare rezidențială de tip locuință individuală sau proiect premium,
într-o zonă apreciată pentru liniște, aer curat și acces facil către oraș.
🌟 Puncte forte:
✔ Zonă foarte bună, în plină dezvoltare
✔ Parametri urbanistici clari
✔ Geometrie excelentă a parcelei
✔ Front mare – flexibilitate în proiectare
✔ Investiție cu potențial de creștere după aprobarea HCL
📞 Pentru informații suplimentare privind documentația PUZ și detalii tehnice, vă stăm la dispoziție.
Comision 2%
într-un PUZ în curs de aprobare, pentru care urmează emiterea HCL.
📐 Date urbanistice:
Suprafață totală: 2.100 mp
Suprafață utilă rămasă: 1.586 mp (după cedarea pentru drumuri)
UTR: Lid
POT: 20%
CUT: 0,4
📏 Configurație ideală:
Front generos: 35 m
Adâncime: 50 m
Străzi prevăzute la 9 m lățime
Terenul beneficiază de o poziționare foarte bună în cadrul PUZ-ului,
ceea ce îl face potrivit pentru dezvoltare rezidențială de tip locuință individuală sau proiect premium,
într-o zonă apreciată pentru liniște, aer curat și acces facil către oraș.
🌟 Puncte forte:
✔ Zonă foarte bună, în plină dezvoltare
✔ Parametri urbanistici clari
✔ Geometrie excelentă a parcelei
✔ Front mare – flexibilitate în proiectare
✔ Investiție cu potențial de creștere după aprobarea HCL
📞 Pentru informații suplimentare privind documentația PUZ și detalii tehnice, vă stăm la dispoziție.
Comision 2%
Specificatii
Curent
Apa
Canalizare
Gaz
CATV
Acces internet
Fibra optica
Vlad Munteanu
0744600897
Esti interesat de aceasta proprietate ?